Извещение о предстоящем выделе в натуре доли в праве общей долевой собственности и об осуществлении согласования местоположения машино-места с участниками общей долевой собственности
11.02.2026
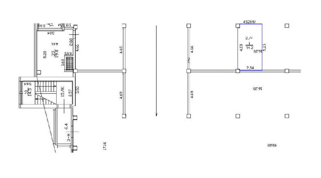
Кадастровым инженером Сабировой Алиной Игоревной, номер регистрации в государственном реестре лиц, осуществляющих кадастровую деятельность 39893, почтовый адрес: 195196, г.Санкт-Петербург, ул.Рижская, д.5, к.1, лит.А, пом.3Н, комн.26, оф.212, номер контактного телефона +79944260410, +79502289544, адрес электронной почты: alinochka-zvonareva@mail.ru выполняются кадастровые работы в отношении помещения с кадастровым номером: 78:10:0005168:597, расположенного по адресу: Санкт-Петербург, пр-кт. Металлистов, д. 116, корп. 1, литера. А, пом. 3-Н, в связи с образованием машино-места 452ММ в счет 1/452 доли в праве общей долевой собственности на помещение.
Заказчиком кадастровых работ является Войткович Александр Александрович, номер его контактного телефона +79312062225, адрес электронной почты sansan.spb@list.ru.
С проектом технического плана машино-места можно ознакомиться по адресу: г.Санкт-Петербург, ул. Рижская, д.5, к.1, лит.А, пом.3Н, комн.26, оф.212 с 9 до 18 часов.
При наличии возражений в отношении местоположения машино-места такие обоснованные возражения в соответствии с частью 3.7 статьи 6 Федерального закона от 3 июля 2016 г. N 315-ФЗ "О внесении изменений в часть первую Гражданского кодекса Российской Федерации и отдельные законодательные акты Российской Федерации" (далее - Закон N 315-ФЗ) направляются кадастровому инженеру по почтовому адресу: 195196, Санкт-Петербург, ул.Рижская, д.5, к.1, лит.А, пом.3Н, комн.26, оф.212 или адресу электронной почты: info@real-cadastr.ru, а также в орган регистрации прав по месту расположения помещения, в котором осуществляется образование машино-места, по почтовому адресу либо по адресу электронной почты органа регистрации прав: Управление Росреестра по Санкт-Петербургу 190900, г. Санкт-Петербург, ВОХ 1170, e-mail: 78_upr@rosreestr.ru.
Дата окончания приема возражений участников общей долевой собственности в отношении местоположения машино-места "30" марта 2026 г.
Фрагмент графической части проекта технического плана образуемого машино-места:
Фрагмент плана 9 этажа
.png)
